"da sempre la parola chiave per comprare e vendere il tuo immobile"
Codice: V040

CASA DI CAMPAGNA

Fondi

€ 125.000

Contattaci su
Condividi sui social:

Descrizione

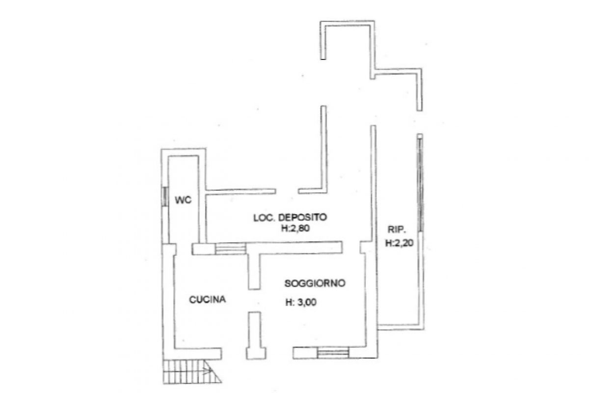
Tra Fondi e Monte San Biagio a pochi minuti dalla Stazione ferroviaria, casolare su due livelli da piano terra a primo per un totale di 75 mq abitativi con annessi locali ad uso deposito a piano terra di ulteriori 75 mq circa. Terreno agricolo di pertinenza per mq 5558 pianeggiante,  accessibile mediante strada asfaltata. Possibile acquisto della proprietà confinante per ampliamento di ulteriori mq 6000 circa .

Dettagli

  • Riferimento
    V040
  • Tipologia
    Ville
  • Superficie
    75 m²
  • Locali
  • Box e posto auto
  • Piano
  • Disponibilità
  • Tipo proprietà
  • Altre Caratteristiche
  • Stato
    DA RISTRUTTURARE
  • Riscaldamento
  • Classe energetica
    Esente

Richiedi maggiori informazioni riguardo questo immobile

Altri annunci simili

Ville GREZZO TRA GLI ULIVI Codice: V039
Ville La peschiera di Torrecanneto Codice: V036
Ville GREZZO PANORAMICO Codice: V035
Ville Bifamiliare centralissima Codice: V034
Ville VILLA IN COLLINA Codice: V 031